Excel Drive - Land

MANKATO, MINNESTOA 56001

Individual lots range from 1.5 to 8.99 acres, with flexibility for combination or subdivision through administrative land split to accommodate a variety of development needs. Price per square foot ranges from $4-$6.

Lots D and E are positioned at the future signalized intersection of Victory Drive and Excel Drive, planned by the county for implementation with surrounding development.

Great access to Highways 22 and 14, within a mile of the new Walmart Distribution Center, and close to major retailers such as Menards, FedEx, and River Hills Mall.


USE: Commercial/ Industrial/ Residential Development

Located in one of Mankato’s fastest-growing areas, the Excel Drive site offers over 18 acres across four separate parcels. With direct access to Highways 14 and 22, future connection to Victory Drive via Excel Drive, and proximity to major retailers and the new Walmart Distribution Center, this property is well-positioned for a variety of uses—from residential to commercial, industrial, or mixed-use development.

Available Parcels:

  • Lot A: 4.25 Acres

  • Lot B: 8.99 Acres

  • Lot D: 1.5 Acres

  • Lot E: 4.22 Acres

Lots can be purchased individually (ranging from 1.5 to 8.99 acres), combined for larger projects, or split through an administrative land division if a smaller footprint is needed.

Parcel Highlights:

Lot A is great for residential or small-scale commercial. It's near parks, schools, and retail, and will connect directly to Victory Drive once Excel Drive is completed.

Lot B is the largest lot—flat and ready to go. It’s ideal for cold storage, multi-family, or larger commercial projects. Can be combined with Lot E for up to 13.21 acres.

Lot D offers high visibility and easy access—perfect for a gas station, small retail, or office.

Lot E is zoned B3 Commercial and fits well for office, retail, or mixed-use. Great frontage and can pair with Lot B if more space is needed.


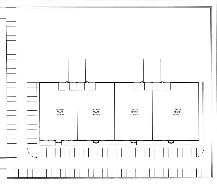
LOT E PROPOSED BUILDING

 
 
CONTACT AGENT
Previous
Previous

Power Drive - Buisness Center

Next
Next

THE BRANDT BUILDING